

///
前沿潮流风尚
避免视觉上的繁复与装饰,遵循less is more的简化理念,形成流动的层次与穿透力;同时对空间线条、光影、美感进行配置,让极简主义的精髓得以体现;最大程度地释放空间体量,用自然清爽去阐述生活,发现藏在别墅里的艺术审美!

缪斯之源
本案居者是一位理想主义的践行者,热爱生活,渴望拥有一处素简的栖居空间。针对这个诉求,设计师从屋主的需求出发,追求功能与形式的完美统一,力求布局简约,将纯粹重新拉回到现实,塑造宁静悠然的生活氛围。
改造解说
| 调整空间分配 · 完善品质人居
将原始空间的面貌重新打散,以“自然生活”为整体切入点,呈现出符合舒适学的理想大宅;引入一些新鲜的局改思路,通过重新梳理简化,实用功能全面升级,赋予了空间清新脱俗的艺术气质:
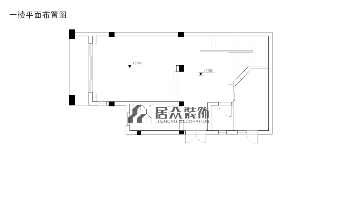
平面布置图
Layout Chart
● 拆除一楼多余墙体,重调楼梯间位置,打造开放式的客餐厨空间;
● 将二楼的整个区域划分为主卧套房空间,涵盖了多功能卫生间与衣帽间及阳台,提高品质调性;
● 重新规划三楼卧室功能,挪改墙体,2个次卧空间都有独立的卫浴;
● 将四楼的卧室墙面齐平外扩,三分离卫生间设计,同时增加联排衣柜,实现不一样的精致。

借由多种材质的混搭,但强调最少的人为干预,将人、自然与生活之间的关系协调,构建真实的空间写照与意趣;坚毅的线条与空间比例,利用不同艺术的载体形式,来丰富墙面、沙发与大理石的层次;无主灯与明暗的光影技巧,让理性的艺术指向关于审美的本质与形式意志!



开阔的厨房属性,让行走动线描绘出了时间的路径,也让内部空间变得通透与明朗;看似未经打磨与雕琢的区域,从天花到地板,都极尽地还原自然的味道;视觉重心转为侧窗的光景,阳光借助竹子的折射,稀稀疏疏地将光线落在桌椅与隐藏式收纳柜上,形成不一样的视觉美学。



契合着整体风格的素雅气质,主卧的“屋瓦”色调更加浓重,让我们内心归于平静以至安宁;从地毯、双人床到壁灯等家居,除去了复杂的思考与变化,以最简练的方式陈述出卧室格调;千岛格的布艺床品搭配干枝蒲苇花束,用小细节慢慢的堆叠出空间氛围感;率性和谐的艺术表现,用虚实来调节都市生活,让“精神坐标”也有新的高度。



在现有的格局之中,加入稳定的构成因子,秩序的气质顺延着立体化的空间塑造出生活域场;用质朴黑白灰的审美张力,将简约主义与自然元素相结合,让多维度的空间体验感层层递进;掠过用心触碰的线面关系,呼应着空中的日光灯带,注重对质感、材料与光线的调节,打造内敛而静谧的沉浸式气息。


脱离了钢筋混凝土的束缚,围绕着仪式感铺陈而来,一系列的明暗对比、冷暖手法,删繁就简的高级在无形之中逐渐形成。通过多角度的灯光设计,营造出与视觉同步的舒适美;用玻璃材质打造通透的卫生空间,实用大方,每一处细节都给人满满的踏实感;超现实的艺术语言,为生活预留出了更多的遐想与格调。


结构线条的美成为空间独特的装饰,视觉感官上的光影突破,正是设计的点睛之笔。在保留原有的空间结构基础上,用极致的软装搭配与细节,将喧嚣与宁静的内宅区分,尽显只属于生活的“舒适篇章”;暖灰色的材质选择,可调节的灯光色温、甚至连摆件都是圆润的造型,处理得十分精致,关怀备至。


感受自由的呼唤,穿梭在内外联动之间,用有生机的艺术意境来表达和谐的生态力量;当石、木、绿植在这里交融,在轻盈洒脱的环境之下,反映出了设计美学的浪漫主题;大理石结合藤编的座椅、手工编织的地毯,融入简约的秋千床,细腻的阳台区无限接近于天然的气氛,多了一丝清澈与灵动;白色鹅卵石的填充,与周围的木地板相互呼应,这样的内在感受也太治愈了吧!


简约内敛,是理想主义与空间的深度对话。以裸露的灰水泥为主调,高级白色起到了点缀的作用,简洁感让空间回归到极简的本质;错层的浴室柜、小地台形成的高度差、浴缸下隐藏排水管设计,更强调人与空间的交互,让整体的效果力求返璞归真,展露充满仪式感的生活方式。


VIDEO
全/案/设/计/视/频/解/析
VIDEO
躲掉庸人自扰的困顿
铺出一条只属于极简的街道
让所有的杂音沉入海底
打开生活的门窗
不要眉头紧锁让美好走过前额
收获充满自然韵味的宅邸
当一小片树叶落在手上
我深知这便是最好的时代!
Copyright@ 1996-2019 深圳市居众装饰设计工程有限公司 版权所有粤ICP备05037286号 粤ICP备05037286号
您家的装修报价