
· 全 案 一 体 化 ·

///

捕捉线条、质感与光泽的不同,同时减少空间的分割,运用现代主义的法则,让生活的初见便是高级与美感同在。挣脱掉浅层的设计束缚性,结合建筑与自然的环境特征,让精致行走其间,挖掘出与需求同频共振的“内在图景”;明确细节与纹理,在理性逻辑的基础上加入仪式感的考量,带来与外在世界的深刻关联;借助物体之间的平衡关系,让生活回归主场。


谈到家的模样,居者想拥有一处复合、久住不厌的空间域所。设计师对生活方式进行深度观察,从空间的动态序列切入,淘汰单一的功能属性,叠加创造维持舒适空间的“原生能力”;由形至意,借由动静空间地悄然渲染,着力塑造内外兼修的理想大宅。


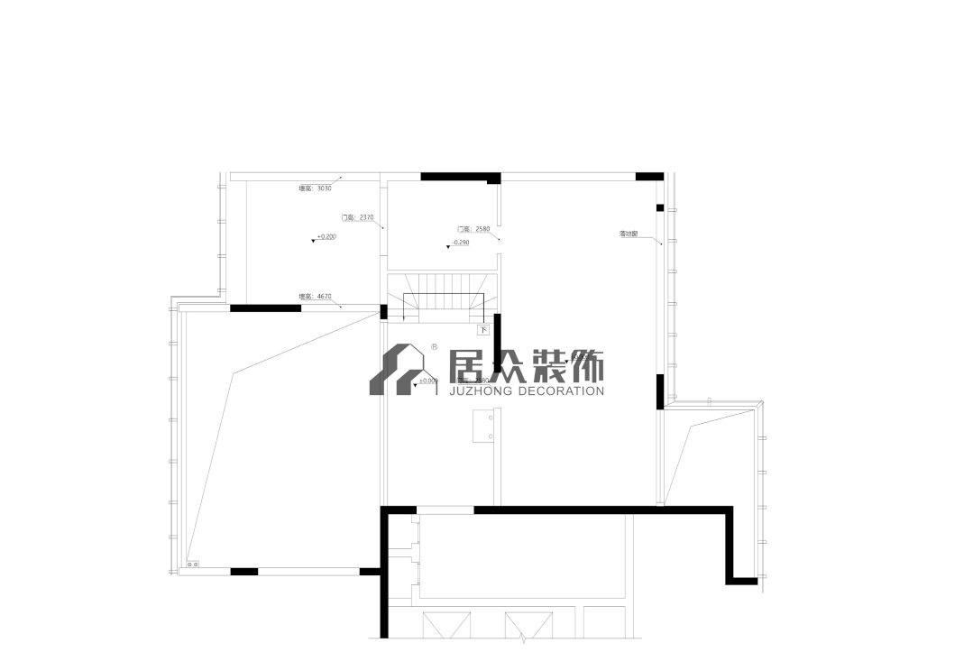
原始空间存在面积浪费的问题,设计师规避原始结构上的限制条件,将框架布局划分组合,创造符合居者的生活空间;从细微处挖掘空间潜力,通过边界重塑,闲置空间释放,聚焦复式空间的高级场景:
平面布置图 / Layout Chart ● 梳理动线布局,将原始楼梯间调整到客厅背景墙后面,将空间利用到极致; ● 挑空层客厅设计,满足上下层空间互动需求,拉伸层高视野宽阔; ● 拆除部分墙体,打造开放式餐厅,空间更加协调; ● 将原始楼梯间拆点,扩容公卫与父母房面积,缓解格局的闭塞感; ● 书房门换成推拉门,开放式封闭式灵活转换,与客餐厅形成合理的动线; ● 洄游动线,打造多功能的主卧套房空间,带来绝佳的居住体验。

适当地保留生活的弹性,从布局、陈设与照明等表现形式的无缝过渡,无意间用细腻地触感升华品质;选用由浅至深的灰色与雅士白作为主色调,贯穿而上的材质融合,渐进出审美体系下的层次张力;高挑空的设计,不拖泥带水的沙发茶几,犹如一面镜子,反映着绅士的品格与态度;注重几何的呼应与色彩搭配,装点纵向的水晶枫叶琉璃灯与简约挂画,用打开的状态与形式重组空间;目光聚焦之处,注入着活力与艺术。




空间实质上是精神的外显,周边的一器一物都有着居者独特的气质。开放式的餐厅属性,遵循美学的整体观,取传统文化中的“圆满”内核,完成空间互动的形式;当夹带着温情与自然的“花枝”艺术,从摆件到挂画再到灯光逐渐的蔓延而来,进一步表达着空间“优雅纯净”的延续美感;藏在右侧角落里的氛围灯,宛如电影般的质感冲出屏幕,为视觉呈现着朦胧的氛围感,也隐匿着居者不俗的感性认知。



以严谨的思路寻求理性生活的实用与功能,在低色调的视觉中,容纳更多的“自我叙述”。隐没在色彩与玻璃元素的震颤下,从木地板、书桌到半开放的书柜,众多元素彼此间相互漫溢,还原着文人质朴的情愫与沉浸气息;在简单轮廓的家居后面,就地取材的自然光成为了不可或缺的元素,在真实的生活里,衍生出坦诚自省的空间磁场。


通过克制与留白的方式,用实用主义为生活场景去做铺陈,将置顶的实际需求进行雕琢与打磨;开放式的衣帽间+中岛台,整合布局与动线,外化为一场经得起推敲的生活方式;推门而进,独特的设计尺度与洄游动线,好似引人入胜的“高分”影片;考量居者在空间中的行为习惯与变化,以“纯白”的弧形分割结构完成转折,质感迎刃而生,不断地游走其中。



体悟生活的美感,统筹空间的搭配,打造层次渐明的光影之地。在美学要义中汲取灵感,去除不必要拼凑装饰,保持最大程度的简约并传达功能美;在线性光线的涟漪下,镜面开始扭转光线,为真正意义上的舒适打下了基础,成为连接理想与生活的纽带;橘色弥散其中,搭配简约的纯净物件,尽显高级本色。

...
内容撰写:集团品牌管理中心


Copyright@ 1996-2019 深圳市居众装饰设计工程有限公司 版权所有粤ICP备05037286号 粤ICP备05037286号
您家的装修报价