前沿潮流风尚
ESTHETICS
坚守现代主义的内涵与价值,美学的连贯性贯穿其中,不动声色地展示空间最纯粹的魅力。植入朴素的木材,打破了空间的冷峻,丝毫没有粗糙的感觉,细节处的灯光点睛之笔,源自对生活的认真与执着;不断地做减法空间设计,除了舒适的比例,更是强调交互与体验,创造出和谐共生的自然美宅。
缪斯之源
STORY
休闲与放松是本案业主的第一诉求。在设计重点上,选用温润柔和的视觉因子,避免鲜艳的配色;设计师结合户型特点与需求,通过简练的设计手法,为公共区域增加互动属性,逐步勾勒悠闲度假风情。
改造解说
DESIGN
| 重构空间形态 · 焕活美墅生活
对原始空间流线进行全新的梳理,重新布局分割与设计,将家的定义融合到每一处角落里;以居者生活、空间功能的不同需求为本,兼顾实用性的同时,突出艺术造景的美感,还原理想美宅:
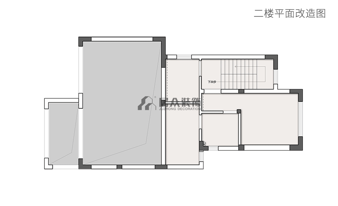
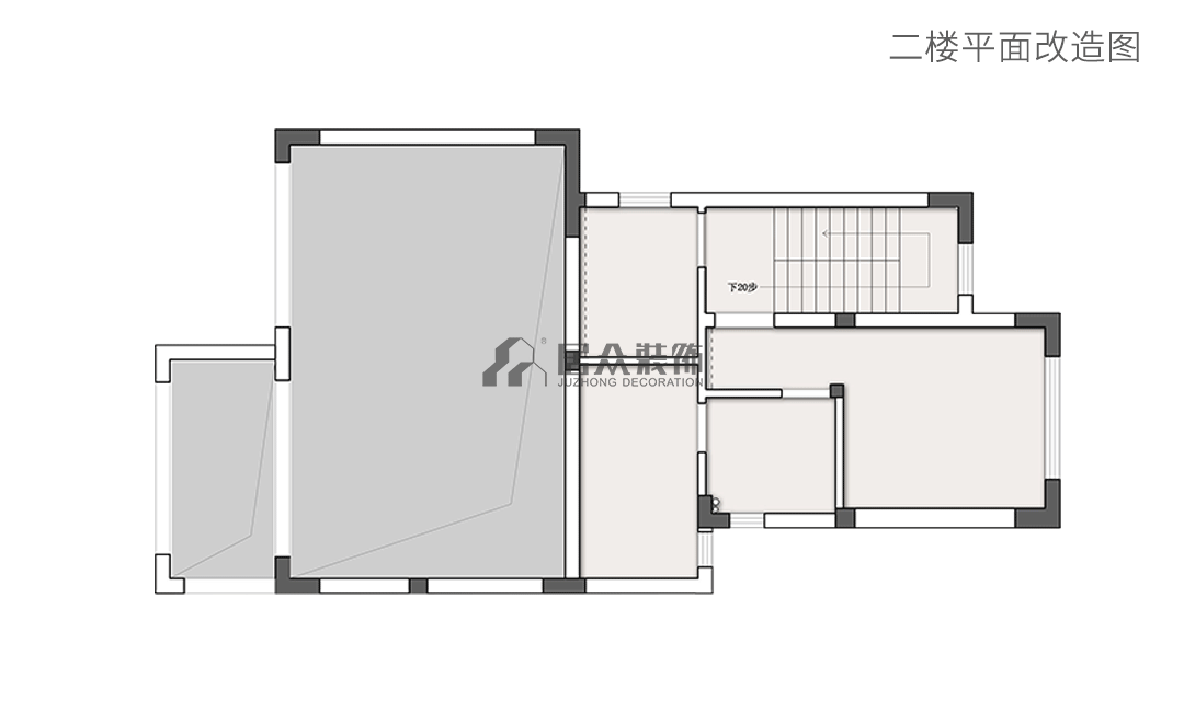
平面布置图左右查看更多
● 重新调整楼梯间位置,将原始位置改换成衣帽间,满足储物需求;
● 拆除多余墙体,增加影音室及工人房,拓宽生活维度;
● 填平挑空层,改造成带卫生间及景观阳台等多功能性套房;
● 增设休闲吧及实木卡座,方便休闲及友人小聚,完善功能及属性。

摒弃了浮华的装饰,透过“简化”的思维手法,带出材质最原始的面貌;注重居者的生活习惯,地面通铺复古瓷砖、搭配着素雅的墙面与休闲沙发,多了一点视觉与动线的流畅;选用中式风格的造型设计元素,从墙面点缀到窗户边框,沉浸其中,拥抱低调的美学与品位;灯带与木材的上下色彩呼应,以倡导自由的方式进行沟通,温润且包容。


将“实”与“形”充分糅合统一,重视功能与清晰的动线,让开放式的空间氛围更显优雅;材质与纹理层面,通过木作与灰色的铺陈,建立起稳定与优雅的秩序;L形的厨房设计,巧妙的收纳柜搭配隐藏式电器柜,完成了功能之间的切换与转折;桌椅恰到好处的层级色差,形成不俗的设计张力,大面积的窗外美景,为室内带来和谐的清新雅调。


营造宁静与静谧的卧室气氛,一明一暗的纯白与原木色,借由动人的生活细节,不着痕迹地将舒适弥散而来。左右而立的布局法则,自然划分动静两区,衔接人与空间的互动,满足不同时段的需求;以轻质隔断墙进行分割,圆形的透景手法,或隐或现,堆叠出有层次的自在与轻盈;小茶几、壁灯、装饰柜与简约桌椅,都在光景与绿植的烘托下,以木为居延续着辽远的情愫。


延续整体设计的风格与元素,以原木材质为切入点,精心打造一个不染尘埃的栖居之所。敏锐的感官探索深层的本质,将视线吸引到床榻之上,搭配对称的吊灯,探索出住宅的灵雅之美;少量的装饰与软装,预留出充足的留白空间,让居者用漫长的生活填满空间。


四方规整的布局,处处透露着理性与客套,但驻足良久,会发现一些隐匿的美好。颜色搭配还是“老三样”,不同的是多了一些床头背景墙的修饰,让空间多了律动与活力;作为尽职的“配角们”,写意的地毯搭配绿植摆件,增添了艺术性与趣味性;良好的采光条件,加持薄薄的白纱,享受阳光与生活便已足够。


木纹砖包裹着自然的气息,没有盲目的“添砖增瓦”,透过纯粹与通透,消弭有形的空间界限。延续整体的基调走向,一字型的干湿分离设计,融合内外的联动,感知简约的力量与生动;将空间的物品进行协调,从悬空浴室柜、雅黑挂架、椭圆形的小地毯,对应着每一处细节的把控,保证干净与明朗,赋予绝对的沉浸感受。

Copyright@ 1996-2019 深圳市居众装饰设计工程有限公司 版权所有粤ICP备05037286号 粤ICP备05037286号
您家的装修报价