

///
前沿潮流风尚
贯之以极简的黑白灰,少一分则单调,添一分而多余。反复打磨思量,用最原始、最基础的线元素,以构成主义的手法重新解构与组合;得益于对生活方式的审视,整个空间的质感、肌理、细节,都夹杂着时光的温润。

缪斯之源
试图与破碎的世界抗争,重新建造一方干净的空间。将美好的概念植入空间,生长出新的生机与活力;以优雅与克制的表现方式,结合连贯性的艺术性,构成一方自洽的天地。
改造解说
| 壕改需求布局 · 成就上乘美墅
原始室内格局不够理想,不符合业主对于现代时尚的期待。设计师将功能与动线优先考虑,对空间进行了重新的规划与改造,连贯起生活、休闲与艺术之间的转换;对细节把控下,将别墅的定义与风范更好地融合到生活里:
左右滑动查看更多
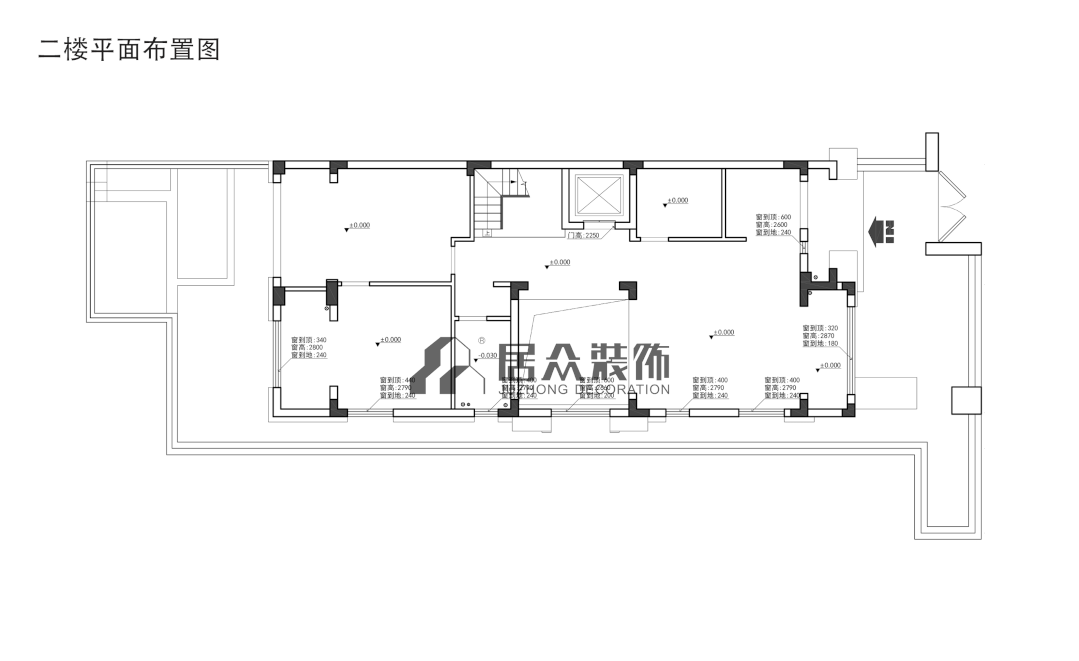
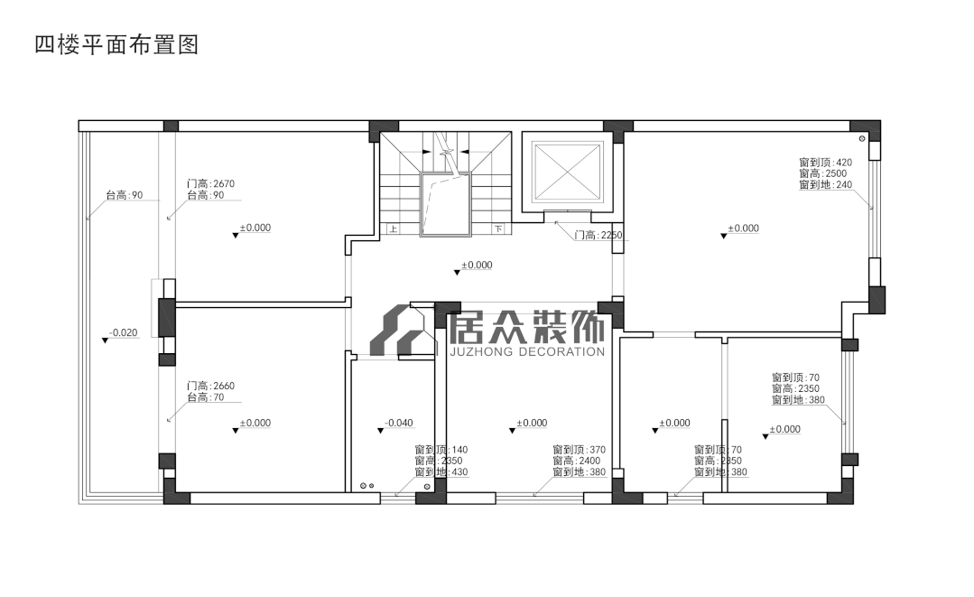
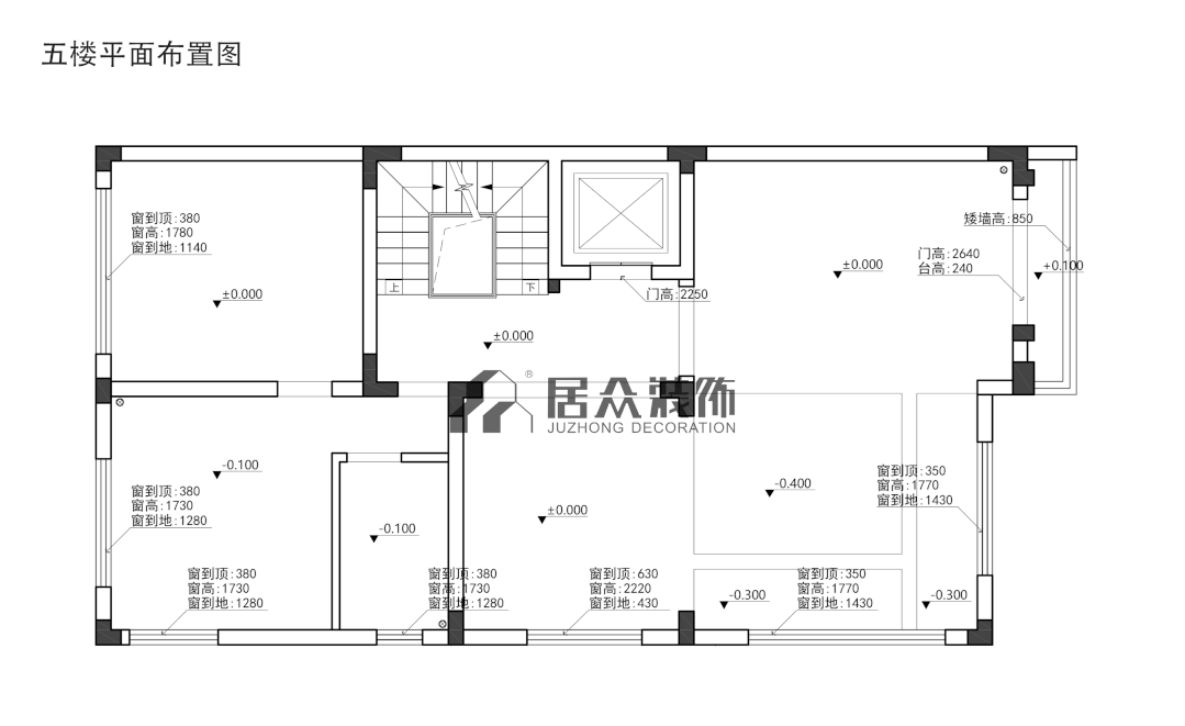
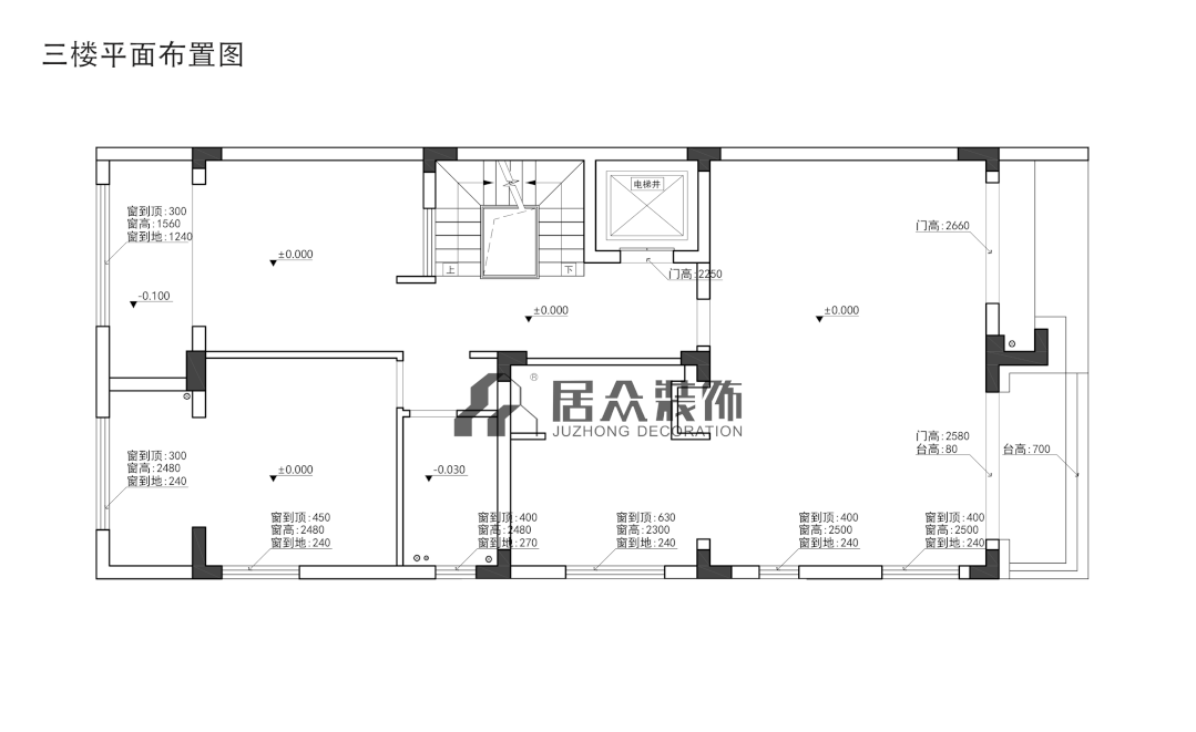
平面布置图
Layout Chart
● 增加双车位(带车棚)超大空间车库,生活设施齐全;
● 让1楼一部分空间让渡出来,改建成室外庭院,扩容生活属性;
● 修补立柱,填平2楼挑空层,设计成旋转楼梯空间,满足个性化需求;
● 所有主卧都是套房设计,将生活舒适性进一步提升;
● 增设亲子活动区、健身房、保姆房等多功能房间,空间功能更加全面。

摒弃常规的现代元素的冗杂,深度挖掘高净值人群的审美与生活方式,重建一个新旧共鸣的极简空间;平衡内在的需求及差异化,将常规元素发挥再利用;软装搭配上选用的黄蓝互补点缀,“潮玩”时尚元素嵌入其中,联动生机与活力,彰显其卓越品质。



于空间始末,不做多余装饰。简约的线条、成为视觉及动线的导向;局部以蓝色修饰提亮,增强层次感的同时完善空间语言结构,顺理成章地成为视觉焦点;遵循极简的风格,用现代的视角诠释餐桌的艺术文化。



更加注重每个区域之间的交流和整体互动,选用小面积的黑色造型奠定空间的艺术基调;以简单的墙面勾勒灯带搭配游走的错落吊灯,随性的布景共同营造着轻盈的美感;多个元素的叠加重组,形成带有力量及节奏感的视觉效果。




沉浸宁静的的氛围,有助于抚平心中的焦虑。利用不同的元素与色块,架构起稳定的秩序载体,没有纷扰,生活的色彩也随之饱和;从摆件、台灯、地毯,转而追求精神空间的艺术,窥见低调优雅而不失温馨的高级气质。


平静之下,克制的恬淡自得艺术的笔调油然而生。通过造型与端景的设计,让空间不在沉闷,又保持着相对的平衡;讲究极致简洁,空间大面积的留白,在界面转折的地方,运用不同的材质,丰富其细节,营造空间视觉美学的层次感和韵律感。


最为常用与纯粹的色彩组合,探寻生活的本源。简约的铁艺收纳搭配木质的大床,在有机的生活状态下,努力为这个世界,留下认真存在的价值;落在于墙角的绿植与编织的物件,在阳光的照耀下,去塑造自然简约的家居氛围。


设计是一场与未来时空的对话,打破美学的界限,将艺术、家居、实用,贯穿了生活的多元层面;注重收纳与娱乐的属性,是一次维度体验的空间大赏;作为重要的社交载体,零距离拉近品质与生活,结合不可或缺的美感,营造高雅的审美意识。


自由且有张力,将对生活的态度,赋予到日常的居住空间。寻求感官与功能上的多重调和,用大面积的雅士白渲染其简约的浪漫;临窗的弧形大浴缸,波光粼粼的超大面墙面镜,传达着居者对于器物与细节的诉求;干湿分离与照明的加持,进一步印刻了人文与关怀。

Copyright@ 1996-2019 深圳市居众装饰设计工程有限公司 版权所有粤ICP备05037286号 粤ICP备05037286号
您家的装修报价